Logo

608m² Ladenfläche in Zürich mieten

Bleicherweg 5, 8001 Zürich - auf Anfrage

Miete

Miete: Auf Anfrage

Details

Referenz: 6491.01.0004
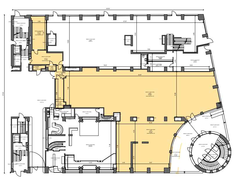
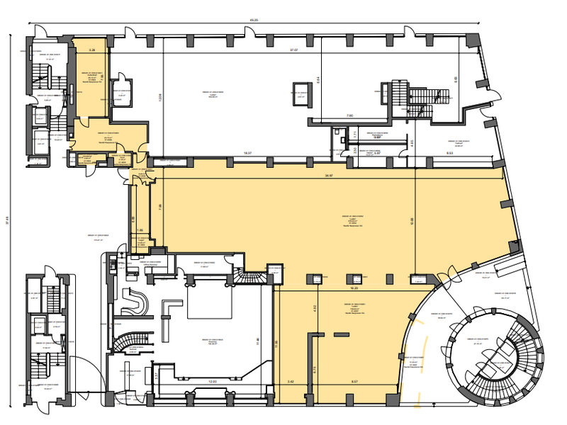
Etage: Erdgeschoss
Nutzfläche: 608 m²
Baujahr: 1930
Renovationsjahr: 2013
Bezugstermin: Nach Vereinbarung
Webseite: https://verfuegbare-immobilien.bvk.ch/

360° Rundgang

Umgebung

Beschreibung

Ihr Auftritt an einer der besten Adressen Zürichs

Am Bleicherweg 5 – nur wenige Schritte vom Paradeplatz und der Bahnhofstrasse entfernt – erwartet Sie eine grosszügige Gewerbefläche mit 608 m² im Erdgeschoss für ein Konzept mit Ausstrahlung.

Ihre Vorteile auf einen Blick

  • Premium-Lage mit hoher Passantenfrequenz und direkter Anbindung an Paradeplatz, Bahnhofstrasse sowie ÖV
  • Grosszügige Schaufensterfronten Richtung Bleicherweg und Talstrasse – ideal für starke Markenpräsenz
  • Zustand: Hochwertiger Rohbau, der sich frei und individuell nach Ihren Anforderungen ausbauen lässt
  • Anlieferung über den Innenhof, zusätzliche Lagerräume auf Wunsch verfügbar
  • Optimal geeignet für Flagship-Stores, Concept Stores, Showrooms und hochwertige Retail-Konzepte
  • Bitte beachten: Gastronomische Nutzung ist aufgrund der baulichen Gegebenheiten nur eingeschränkt möglich

Bereit für den nächsten Schritt?
Wenn Ihr Konzept zu diesem aussergewöhnlichen Standort passt, freuen wir uns auf Ihr Dossier bzw. Ihren Businessplan. Nach Prüfung vereinbaren wir gerne einen Besichtigungstermin.

BVK - Die Pensionskasse mit attraktiven Mietobjekten in der ganzen Schweiz. Tagesaktuell auf www.bvk-immobilien.ch.

Inserent kontaktieren

Inserent

BVK
Postfach
8090 Zürich

Ähnliche Inserate